Gewerbeimmobilie am Betheleck - Verkauf, Lager & moderne Büros mit Parkplätzen
Objektart
Adresse
Objektdaten
Informationen
Ausstattung
Details
Gewerbeimmobilie am Betheleck mit hoher Fahrzeugfrequenz
An einem stark frequentierten Standort am Betheleck in Bielefeld-Gadderbaum befindet sich diese repräsentative Gewerbeimmobilie, die im Jahr 2013 umfassend modernisiert und zeitgemäß gestaltet wurde. Das Objekt überzeugt durch seine Sichtbarkeit, klare Architektur und insgesamt 12 direkt zugeordneten Parkplätzen.
Die Lage an einer vielbefahrenen Ausfallstraße bietet beste Voraussetzungen für eine gewerbliche Nutzung mit Kundenverkehr, beispielsweise als Spezialmarkt, Ausstellungsfläche oder Showroom. Eine Nutzung als Gastronomie oder klassischer Supermarkt ist nicht vorgesehen.
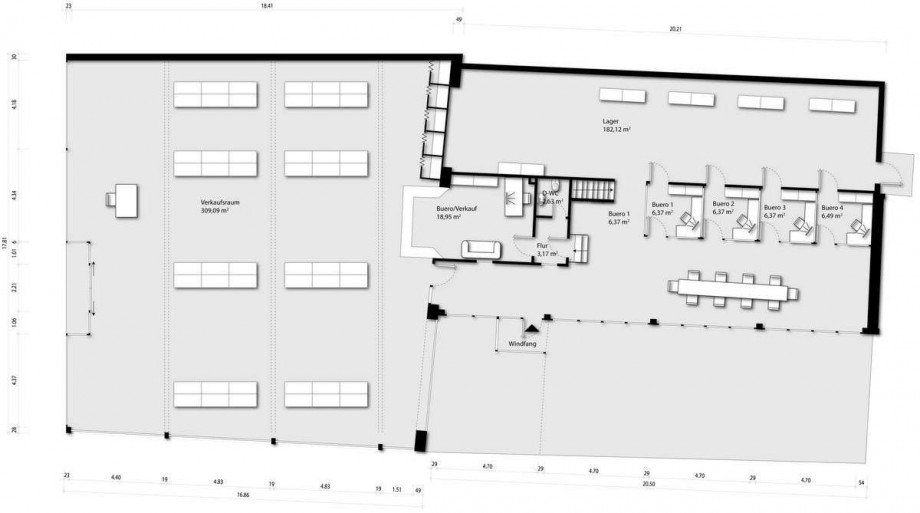
Die Gesamtfläche von ca. 541 qm gliedert sich wie folgt:
Ein großzügiger Verkaufsraum mit ca. 309 qm und einer Deckenhöhe von ca. 3,20 m sowie einer rund 35 Meter langen Schaufensterfront sorgt für optimale Präsentationsmöglichkeiten und hohe Aufmerksamkeit. Ergänzt wird die Fläche durch eine Lagerfläche zzgl. fünf Büroräume sowie einen offenen Besprechungsbereich. Zudem stehen ein WC, ein barrierefreies WC und ein kleiner Teilkeller zur Verfügung.
Ein besonderer Vorteil ist die direkte Anlieferungsmöglichkeit in den Verkaufsraum mittels eines LKW - bis 7,5 Tonnen - über die verschiebbare Schaufensterfront, was Abläufe vereinfacht und flexibel gestaltet.
Im Rahmen der umfangreichen Modernisierung im Jahr 2013 wurden unter anderem die komplette Fensterfront inklusive Windfang erneuert, das Dach saniert und gedämmt, die Elektroinstallation vollständig modernisiert sowie der Estrichboden erneuert und gedämmt. In den Büroflächen wurde eine Fußbodenheizung mit moderner Betonoptik integriert. Zusätzlich erfolgte der Einbau einer neuen Gas-Brennwerttherme sowie von Deckenlüftern im Verkaufsbereich. Im Jahr 2020 wurde das Objekt durch den Einbau eines barrierefreien WCs ergänzt.
Der Mietbeginn erfolgt nach Vereinbarung.
Die monatliche Betriebskostenvorauszahlung beträgt 290,00 EUR netto zzgl. Heiz-/ und Stromkosten.
Besichtigungstermine sind ausschließlich nach vorheriger Abstimmung mit unserem Büro möglich.
Der angegebene Mietpreis versteht sich zzgl. ges. MwSt..
Besichtigungstermine sind jederzeit gerne und ausschließlich mit unserem Büro zu vereinbaren.
Zentrumsnah in der Nähe von Dr. Oetker/Bethel in Bielefeld-Gadderbaum gelegen. In 4 Fahrminuten ist der Ostwestfalendamm (B61) mit Anschluss an die A33 erreichbar. Die nächste S-Bahn Haltestelle befindet sich in unmittelbarer Objektnähe.
Energieausweis (Verbrauchsausweis)
173 kWh / (m²*a) Energieverbrauchskennwert
173 kWh / (m²*a) Energieverbrauchskennwert
173 kWh / (m²*a) Energieverbrauchskennwert
Weitere Informationen
| Wesentlicher Energieträger | GAS |
| Energieausweis gültig bis | 2030-04-01 |
| Energieausweis Jahrgang | ab dem 1.5.2014 |
| Energieausweis Stromwert | 43.00 kWh / (m²*a) |
| Energieausweis Wärmewert | 173.00 kWh / (m²*a) |
| Energieausweis Werteklasse | F |
| Energieausweis Baujahr | 1979 |
| Energieausweis Gebäudeart | Gewerbe |
| Heizung | Etagenheizung |
Ich bin damit einverstanden, dass mir Karten von Google angezeigt werden. Es gelten die Datenschutzbedingungen von Google (https://policies.google.com/privacy).
Ich bin einverstanden