Objektart
Adresse
Objektdaten
Informationen
Ausstattung
Details
Mehrfamilienhaus Bj. 1952, gepflegt, vollunterkellert, ca. 10 Gehminuten vom Hauptbahnhof sowie der Bielefelder Innenstadt entfernt (Thielenstraße).
Vermietung an max. 3 Personen!
Ideal für ein Paar oder eine 2 bis 3er WG!
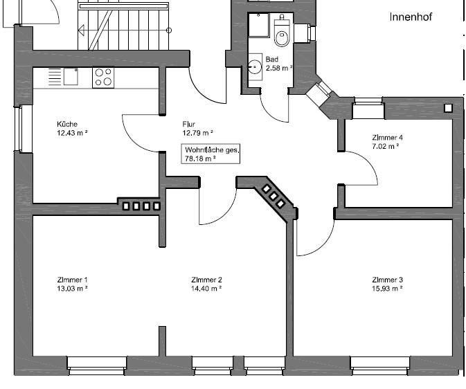
Die Wohnung ist im Erdgeschoss gelegen und verfügt über eine Wohnfläche von ca. 81 m² verteilt auf: ein geräumige Eingangsdiele, großzügige Wohnküche, ein Schlafzimmer, Wohnzimmer mit direktem Anschluss an ein Ess-oder Schlafzimmer sowie ein weiteres kleines Zimmer, welches ideal als Arbeits- oder Ankleidezimmer dienen kann.
Das Tageslichtbad ist hell und modern verfliest und mit einer Dusche ausgestattet.
Ein separater Kellerraum sowie ein Gemeinschaftswaschkeller sind vorhanden.
Eine Küchenzeile ist vorhanden.
Die Kaltmiete beträgt 640 Euro + 220 Euro Nebenkosten (gewöhnliche Betriebskosten inkl. Heizung).
Die Stromkosten sind direkt mit dem Versorger abzurechnen.
Nähere Details erhalten Sie auf Anfrage oder bei einem Besichtigungstermin, den Sie gerne und ausschließlich mit unserem Büro vereinbaren können.
Wir freuen uns auf Ihre schriftliche Anfrage!
Thielenstraße - zentrale Seitenlage mitten in Bielefeld.
Die Bielefelder Innenstadt sowie der Hauptbahnhof sind fußläufig in ca. 10 Gehminuten gut zu erreichen. Alle Einrichtungen des täglichen Bedarfs sowie öffentliche Verkehrsmittel befinden sich in unmittelbarer Nähe.
Ansprechpartner
Telefax: 00495219665858
m.zuber@heise-immobilien.de
.
Energieausweis (Verbrauchsausweis)
135,20 kWh / (m²*a) Energieverbrauchskennwert
135,20 kWh / (m²*a) Energieverbrauchskennwert
135,20 kWh / (m²*a) Energieverbrauchskennwert
Weitere Informationen
| Wesentlicher Energieträger | GAS |
| Energieausweis gültig bis | 2032-01-17 |
| Energieausweis Jahrgang | ab dem 1.5.2014 |
| Energieausweis Werteklasse | E |
| Energieausweis Baujahr | 2012 |
| Energieausweis Gebäudeart | Wohngebäude |
| Heizung | Zentralheizung |
| Befeuerung | Gas |
Ich bin damit einverstanden, dass mir Karten von Google angezeigt werden. Es gelten die Datenschutzbedingungen von Google (https://policies.google.com/privacy).
Ich bin einverstanden